







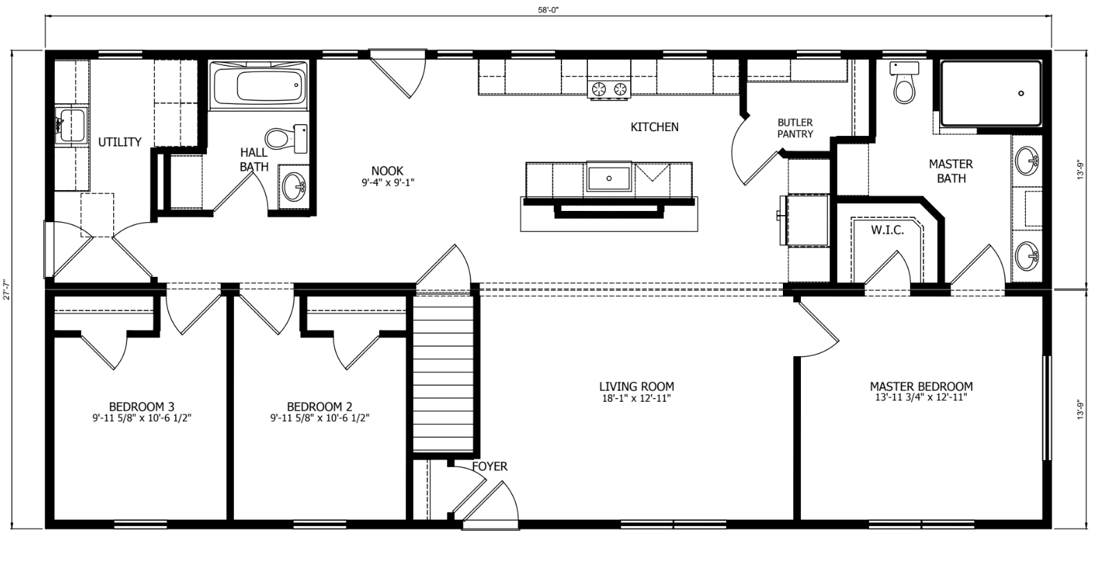
3BR, 2BA | 28' x 58' (approx) | 1,624 (approx)
FLOORS
EXTERIOR & MARRIAGE WALLS
ROOFS
EXTERIOR DOORS & WINDOWS
INTERIOR WALLS & CEILINGS
INTERIOR DOORS & MOLDINGS
KITCHENS
BATHS
ELECTRICAL SYSTEM
HEATING SYSTEM
PLUMBING SYSTEM
WARRANTIES
*This specification list is only a guideline for what is included; please refer to your actual quote and floor plan(s) for the actual specification and what is included in your order. These specifications may not meet your customer's State or Local code requirements.
** New Era may, in its sole discretion, change any specifications as to' materials or design which are required by the availability of materials, vendor pricing, or any other reason; provided such changes in specifications do not affect the structural integrity of the home.
Construction Options
Exterior Options
Interior Options
Kitchen Options
Bathroom Options
Miscellaneous Options
We understand that your monthly payment is one of the most important factors in deciding the affordability of your new home. Fill out the form below to recieve access to our free mortgage calculator.

Join us for our spring open house Saturday, June 14th! We're MATCHING ALL CUSTOMER DEPOSITS up to $5k! Plus, two brand new models, special discounts, family activities, and more! Enter info below to RSVP or for more information.